Back to Clinic Options

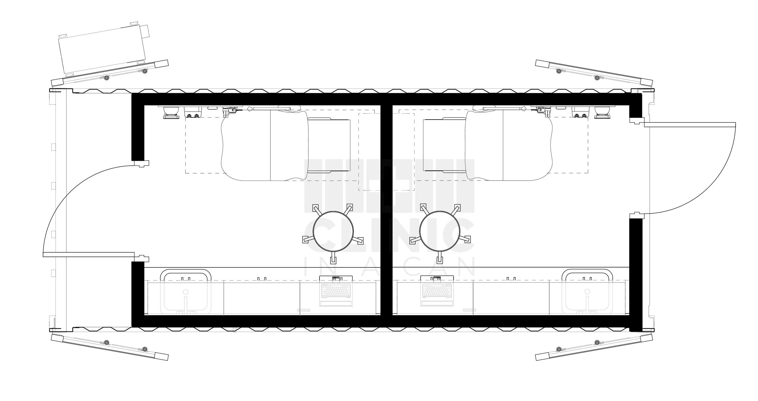
SPLIT DOUBLE EXAM ROOM CLINIC

Finished Interior Usable Medical Space: 112 square feet or 10.57 square meters (total for both sides)
Finished Medical Storage Space: 17 cubic feet or 0.5 cubic meter

Double Exam Room Includes:

  • (2) sets of Midmark steel powder coated medical cabinetry with corian countertops, integrated locks and soft touch close

  • (2) stainless steel sinks with a goose-neck faucets

  • (2) air conditioning units with integrated heat pumps

  • LED lighting

  • (3) universal duplex electrical outlets per room

  • (1) standard telephone with exterior communication port access panel

  • An external water supply connection and an external grey water waste connection

  • (2) sliding glass windows with integrated bug screens

*** Please note that this clinic is NOT CSC Certified for shipping purposes***

(2) Ritter 253 LED wall mounted Procedure Light 110/220V 50/60Hz
(2) Ritter 204 Exam table with flex drawer
(2) Welch Allyn GS 777 PanOptic Opthalmascope, MacroView Otoscope, Wall Aneroid, Kleenspec Specula Dispenser, Sure Temp Plus 690 Therm
(2) Ritter 277 Airlift physician roll around stool with backrest
(2) Fire Extinguisher 2.2 Kg Class ABC rechargeable and smoke detector
(2) Midmark Pebble Grey side and front, RH door, two glove, tower and cup dispenser
(2) GCX 4 I.V. bag hook M series arm wall mounted adjustable I.V. pole

Double Exam Room Equipment

We can provide you a set of stamped MEP plans to submit to ensure your clinic meets strict local building codes and state manufacturing codes at an added cost.

CONTACT US TO GET A QUOTE ON YOUR NEW CLINIC TODAY!

Get A Quote